Under Construction Terraced House

Nadur €425,000
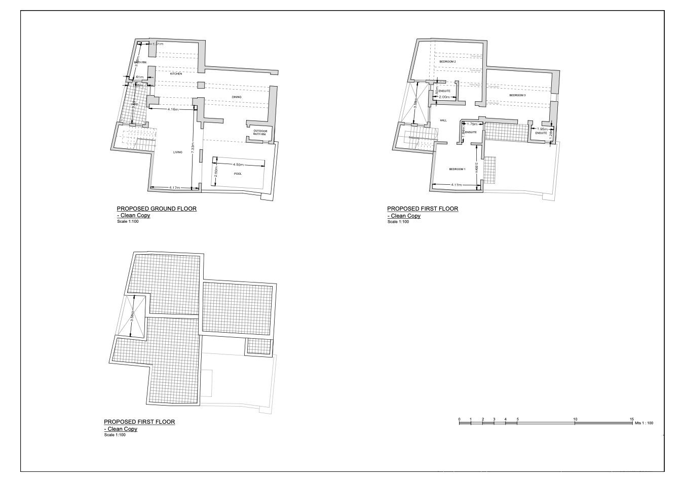
Nadur
REF: BCF528730
NADUR - An off plan TERRACED HOUSE situated in this serene and quaint village, minutes away from Nadur square. Comprising of a combined kitchen, dining and living space, 3 bedrooms all with an en-suite and 2 extra bathrooms. House features a nicely sized pool and terraces. Completion date is set by end of June 2026. Being offered in shell form and freehold.
3
5
Enquire now
Print
Units & Plans

Floor Plan 1View plan
Reference: BCF528730
Property Enquiry
Checkboxes

Be the first to know.

Simply register here to receive our newsletter with the latest and exclusive property offers!

Newsletter